Scope Box

1573

Crop region sınırı Scope Box ile doğrudan ilişkilendirilebilir. Çizimlerde, tüm kat planlarının sınırlarının aynı ebatlarda olmasını istiyorsak, Scope Box özelliğinden faydalanabiliriz.

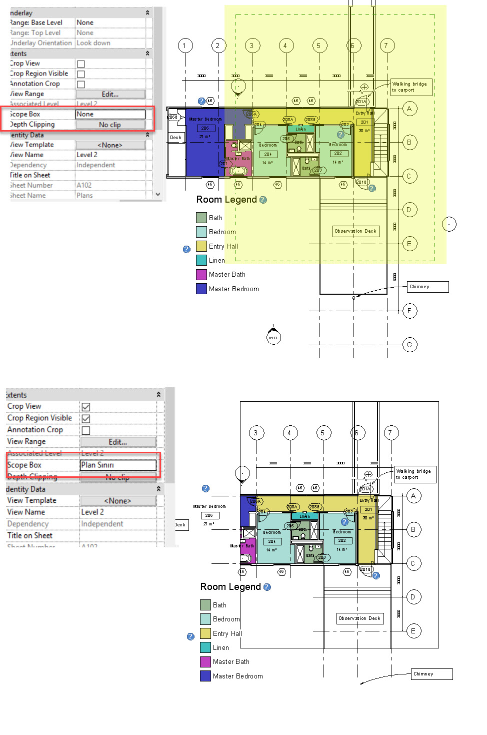
Örnegin, aşağıdaki imajda görüleceği üzere, iki farklı kat planını 3-7 ve E akslarında sınırlamak istiyoruz. Yani tüm katları aynı yerden aynı hiza ve ebatta keseceğiz. Kat planlarının arttığı, karmaşıklaşan çizimlerde bu özellik çizimleri oluştururken hız kazandırmakla beraber grafiksel iyileştirmeleri de sağlayacaktır.

Çizimlerin paftalara sığmadığı durumlarda ya da çizimleri gruplamak etaplamak istediğimiz durumlarda bu yöntem kullanılabilinir.

Görsel1: Aynı yerden kesilmesi istenen farklı kat planları

1.Scope box, View sekmesinde,create başlığının altında bulunarak tıklanır ve istenilen şekilde oluşturulur.

2. Gösterilecek alan sınırı istenilen şekilde tanımlanmış olur. Scope Box seçildiğinde aktifleşen ok işaretleri ile, istenilen değişiklikler yapılır. Scope Box seçili halde iken, Properties bölümünden Scope Box ın adı değiştirilinebilir.

3. Herhangi bir Scope Box seçilmediği durumda, plan sınırları NONE durumundadır.

4. Daha önce tanımlayarak ismini değiştirdiğimiz Scope Box ‘ı seçtiğimiz durumda, kat planı, Scope Box  sınırlarına göre kesilmiş olur.

5. Bu işlem diğer kat planları içinde yapılabilinir ve Scope Box ‘ın diğer planlarda görünüp görünmeyeceği kendi ayarlarından değiştirilebilir.