Revit’te kesit oluşturmak çok basittir. Yapmamız gereken tek şey kesitin geçeceği yeri ve bakacağı yönü belirlemektir. Cad yazılımlarında olduğu gibi, yeni çizim üretmememiz gerekmemektedir. Çizim üç boyutlu oluşturulduğunda, istediğimiz noktalardan kesit almamız mümkün olmaktadır.
1. View sekmesinden Section komutu kullanılır.
- Kesitin geçeceği yer belirtilir.
- Kesitin bakacağı yön belirtilir. Burada yukarı doğru bakmaktadır, kesit çizgisinin hemen altındaki yukarı/aşağı ok işaretinden yönü aşağı doğru döndürülebilir.
4. Kesitin başlığına çift tıklayarak kesite ulaşabiliriz
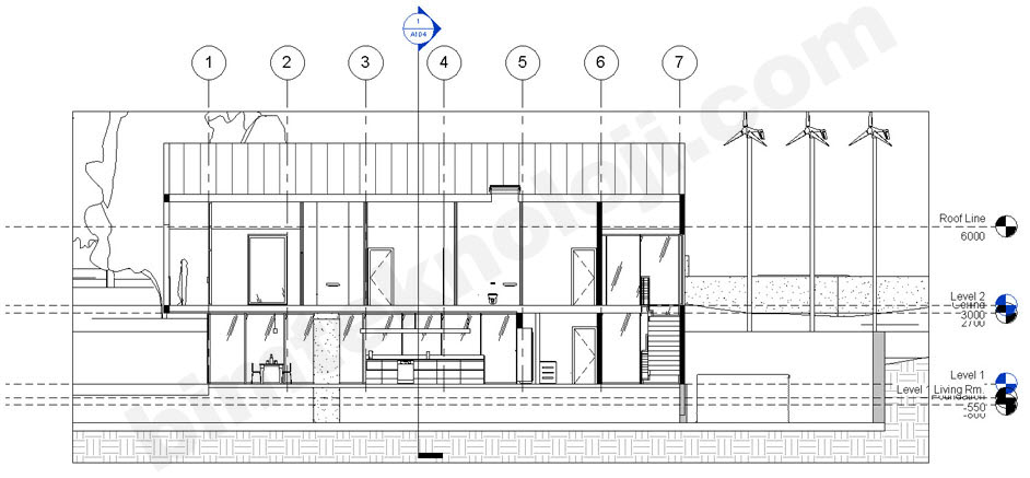
- Kesite ulaşılmıştır.
- Kesitin ismi Project Browser dan Section görünümüne sağ tıklanıp Rename seçilerek değiştirilebilir.
- Kırık bir kesit almak isteniyorsa, kesit seçilir Modify sekmesinden Split Segment komutu kullanılır.
- Kesitin kırılacağı yer seçilir ve ok işaretleri yardımıyla düzenlenir.



















































